| Byt č. | Podlaží | Dispozice | Plocha | Terasa | Zahrádka | Kóje | Parkovací stání | Cena vč. DPH | Schéma | Stav |
|---|---|---|---|---|---|---|---|---|---|---|
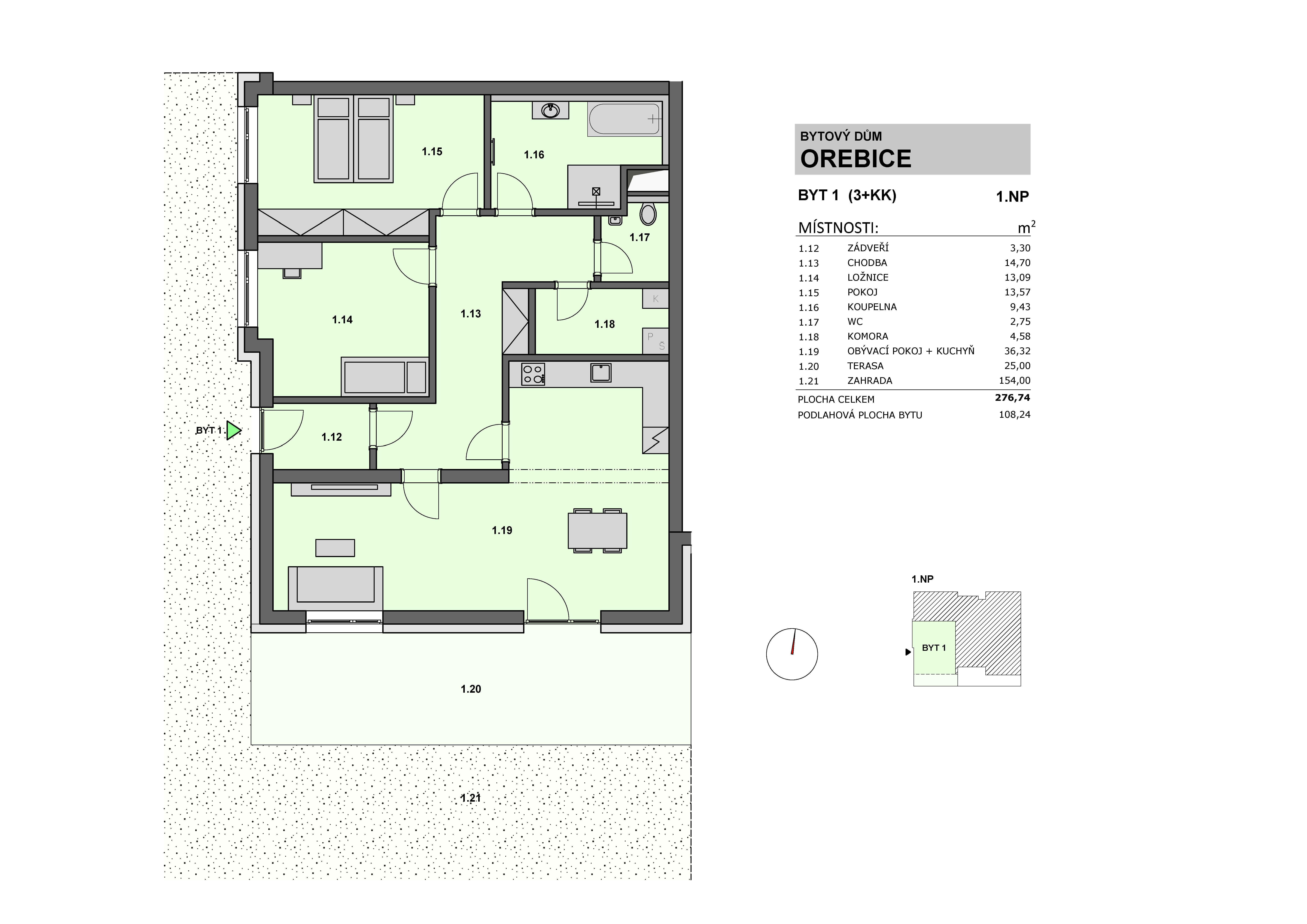
| 1 | 1 NP | 3+KK | 104,77 m2 | 25 m2 | 134 m2 | - | 2 | - | Schéma | prodáno |
| 2 | 1 NP | 2+KK | 68 m2 | 27 m2 | 29 m2 | - | 1 | - | Schéma | prodáno |
| 3 | 1 NP | 3+KK | 82,01 m2 | 20 m2 | 96 m2 | - | 2 | 9.021.100 | Schéma | volný |
| 4 | 2 NP | 3+KK | 111 m2 | 36 m2 | - | 1,74 m2 | 2 | - | Schéma | prodáno |
| 5 | 2 NP | 2+KK | 65,53 m2 | 9,46 m2 | - | - | 1 | - | Schéma | prodáno |
| 6 | 2 NP | 3+KK | 86,26 m2 | 28,52 | - | 1,74 m2 | 2 | - | Schéma | prodáno |
| 7 | 3 NP | 4+KK | 130 m2 | 36 m2 | - | 1,74 m2 | 2 | - | Schéma | prodáno |
| 8 | 3 NP | 4+KK | 103,76 m2 | 29,29 m2 | - | 1,74 m2 | 2 | 11.413.600 | Schéma | volný |
Klíčové výhody projektu:
- Nízkoenergetické vytápění: Bytový dům je vybaven tepelným čerpadlem, které zajišťuje efektivní a úsporné vytápění a šetrný přístup k životnímu prostředí.
- Soukromé terasy nebo předzahrádky: Každý byt disponuje buď velkou předzahrádkou, nebo komfortní terasou, která nabízí soukromí a prostor pro relaxaci či společné chvíle s rodinou. Všechny byty jsou opatřeny předokenními žaluziemi.
- Nemrznoucí kohouty na terasách: Každá terasa je vybavena praktickým nemrznoucím kohoutem – ideálním pro zalévání zahrádky, po instalaci sprchy ochlazením v horku během letních měsíců nebo další praktické využití.
- Parkovací místa s přípravou na elektromobil: Ke každému bytu náleží jedno až dvě parkovací stání s možností budoucí instalace nabíjecí stanice pro elektromobily.
- Moderní architektura: Prostorné interiéry a kvalitní materiály podtrhují vysoký standard bydlení. Součástí standardního vybavení je také nainstalovaná příprava pro klimatizaci, která vám umožní přizpůsobit si v budoucnu prostředí podle svých představ.
Rezidence Orebice Poděbrady je nejen místem, kde se dobře bydlí, ale také příležitostí ke klidnému a ekologickému životu v blízkosti přírody.



